Cosi voters consider municipal building at cost of $3 million
Published 1:30 am Tuesday, October 15, 2019
Voters in Cosmopolis are being asked to consider a bond to build a municipal building that would house City Hall, Municipal Court and the police station. Last week, the city held the second of three meetings to discuss the measure, which will be on the November ballot.
The third and final meeting is 6 p.m. Oct. 22 at the city’s Fire Department.
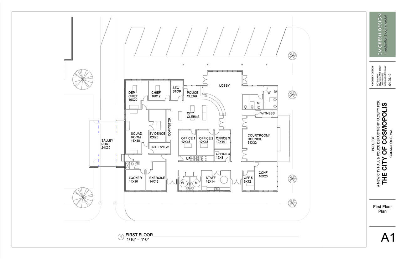
At last week’s meetings, city officials said the proposed 8,800-square-foot facility is expected to cost about $3 million based on preliminary estimates provided by an architect who developed renderings of what a building might look like. The city would pay back the bonds used to pay for the building over 20 years.
During the Oct. 8 meeting at the city’s fire station, several people, of the hand-full in attendance, spoke out in favor of new facilities. Nobody spoke out against the proposal.
In late July, the Cosmopolis City Council voted unanimously to let the residents decide whether they would pay for a new building.
If the vote is approved, City Administrator Darrin Raines said, an architect likely would be found early next year and construction likely would begin in spring 2021.
The current police station is in a mobile building donated to the city by Weyerhaeuser in 2006. The building was constructed in 1971. The current City Hall is in an old bank building. Neither building is compliant with the federal Americans with Disabilities Act.
“We don’t have sufficient room to store evidence or to process that evidence,” Police Chief Casey Stratton said during the meeting. “We’ve had copious amounts of marijuana at any one time taking up all our room.”
He also said the department needs a secure holding area and secured parking area.
If approved, the police station would have to relocate during construction.
“Local business have offered to lease space to the Police Department,” Stratton said.
Municipal court is held in a training room in the city’s fire station.
“If the city is going to maintain a court, we need to have a proper courtroom,” Court Administrator Shelley Willet told the gathering. “The judge needs a chambers, that’s not to say that couldn’t be shared with somebody else. An attorneys’ office or a place for interpreters to meet with clients in private is really important.”
Julie Pope, the city’s clerk and treasurer, told the audience that a home with an assessed value of $177,000 would pay about $72 per year in taxes. She estimates the rate per $1,000 of assessed value would be $0.40686.
“The city is in the best financial (state) it’s been in since Weyerhaeuser closed the mill,” she said. By the end of this year, the city expects to have less than $200,000 in long-term debt.
Raines, the city administrator, said $3 million would be the most the city would spend on the facility.
“If we design a building that went out to bid and it came back above ($3 million),” he said, “we would have to go back somehow and find a way to cut it to meet that limit; $3 million is the ceiling.”
There is one more meeting to discuss the bond issue. It is 6 p.m. Oct. 22 at the city’s Fire Department.
