Renderings, possible cost for new Cosi municipal building released
Published 4:30 pm Wednesday, August 21, 2019
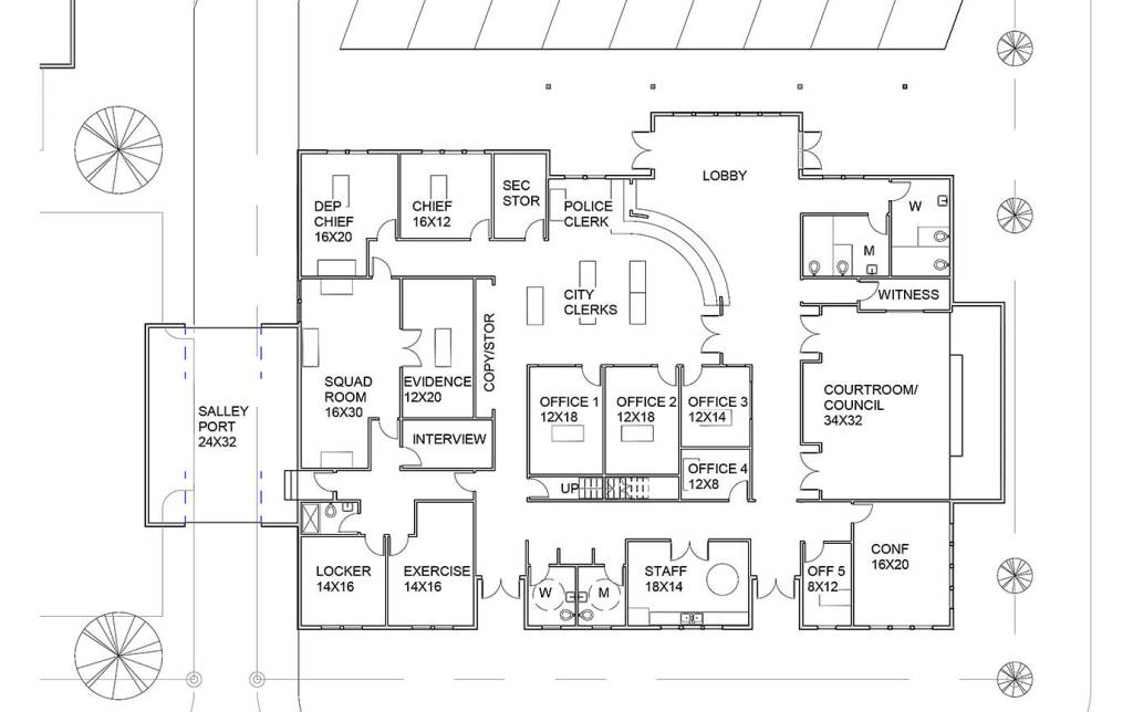
The City of Cosmopolis has posted informational videos providing details about the need for a new municipal building to house its police department, city hall and court, including a breakdown of two scenarios detailing the cost to property owners if voters approve the $3 million project in November.
The videos also provide a first look at what the structure might look like.
The police department is currently housed in a modular building donated by Weyerhaeuser in 2006, which the department long ago outgrew and is not structurally sound, according to Police Chief Casey Stratton.
“We’re not ADA compliant at all,” he said. There are fire code concerns as well, “with one entrance and it being an older trailer not made out of fire resistant material.”
The one entrance/exit into the building at 1312 1st St. is a wooden staircase which leads to a small reception area. Inside, evidence rooms are stacked to capacity, leading to some interesting scenarios as the department tries to make due with the space it has.
“We have to seal off our interview room to house oversized items or those that need additional processing,” said Stratton. “At one point we had freshly-seized marijuana plants that had to be dried hanging in there.”
Basically, the department is frequently “taking a purposed area and turning into something dual purpose, when they can’t coexist,” said Stratton.
There are currently five full-time officers in the department, a clerk, and six “very active” reserve officers, “so at times it can get pretty crowded in here,” said Stratton.
Cost
The city has provided two cost breakdowns for the proposed facility, based on 20- and 30-year loans.
20-year loan: Quarterly payments of $57,069 would be made on the $3 million loan, a total of 80 payments. The total payments would add up to $4.5 million, with total interest of $1.56 million. The cost per $1,000 of value in property taxes to city property owners would round up to about 41 cents, roughly $82 annually for a $200,000 home in the city.
30-year loan: With this option there would be 120 quarterly payments of $45,682 made for the term of the loan. This option would lessen the annual impact on property taxes to about 33 cents per $1,000 in assessed value, about $66 a year for property owners, but would increase the total end payment for the loan to $5.48 million with an additional $916,299 in interest over the 20-year loan.
There will be some open house meetings regarding the 20- and 30-year loan plans, said Cosmopolis Mayor Frank Chestnut. He said staff is discussing the meeting format and expects dates to be advertised soon. With public input, and the ongoing input of the city’s Facility Advisory Board, a decision on which loan plan will be used will be selected by the City Council prior to the November vote.
Videos
There are two videos about the project, accessible through the police department’s Facebook page and YouTube. The first is a walk-through of the current police facility; The second shows the design and cost estimate.
“They are available 24/7 to refer to and provide contact information all on the same page,” said Stratton, who encourages anyone with questions or comments to call him personally at the police department, 360-532-9273, or to call City Hall at 360-532-9230.
The feedback has generally been positive since the city first looked at a municipal building earlier this year.
“I think that it is amazing the community as a whole would even entertain the thought of this facility,” said Stratton, who added the city’s police department has never had its own facility specifically constructed with its needs in mind. “It’s always been housed in other facilities, rentals or repurposed buildings.”
