By David Haerle
The Daily World
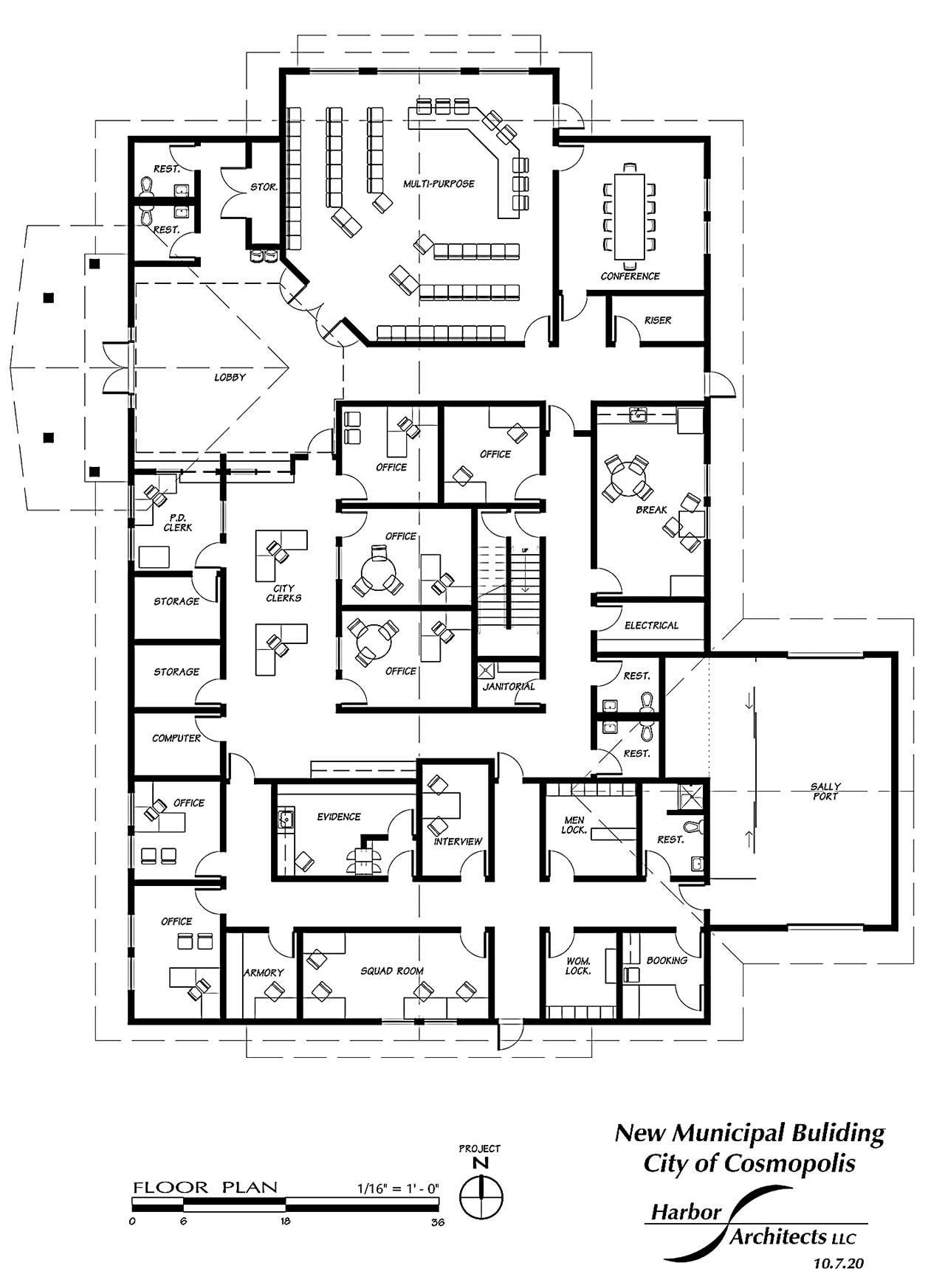
If you need some sort of illustration of how “every vote counts,” just take a look at the accompanying illustrations with this story.
The City of Cosmopolis recently released the architectural drawings of what its new municipal building will look like when completed.
That’s the $3 million building that will be financed by a bond measure that was barely passed by Cosmopolis voters just over a year ago. The bond measure received 60.12 percent of the votes last November, squeaking past the 60 percent plus one vote total needed. Of ballots received, 382 voted for the bond measure to fund the building; 253 voters rejected the effort. More than 59 percent of registered voters returned ballots for that race.
That was the same election in which Kyle Pauley was elected mayor of Cosmopolis, and he’s excited to see the project break ground in spring of next year.
“It was tight. It passed by maybe two votes — or something like that,” Pauley said Wednesday while recalling an election that now seems so long ago in that year fondly remembered as 2019.
“This has been a long time coming,” said the mayor. “We will put (the project) out to bid here soon and be raring to go.”
In 2005, the Cosmopolis Police Department and the Cosmopolis Municipal Court were moved from their former building and were placed in a trailer donated by Weyerhaeuser. This building was intended to be a temporary home for the department, and 15 years later it’s still being used by the police.
The court, formerly also housed in the trailer until the Police Department required more space, was moved within the Cosmopolis Fire Department building, where it has been temporarily since 2015.
As for City Hall, staff have also been relegated to a re-use location, working within the confines of the former Rainier Bank building since 1990.
“This year has put a strain on all aspects of life, but knowing that the future of Cosmopolis will be a little brighter by making all of these operations more efficient under one roof, that is actually designed for their purpose, is something the entire community can look forward to.” Pauley said.
While statewide restrictions forced the planning for the project to be delayed, work has moved forward by Harbor Architects LLC, including the conceptual drawings released last week.
“We are extremely excited to reach this major milestone in the design of the new Cosmopolis Municipal Building. Upon overcoming the challenges of COVID-19, Harbor Architects and the City of Cosmopolis have worked diligently in getting our schedule back on track with original timelines.” said City Administrator Darrin Raines.

